Продажа 2-комнатной квартиры - Россия, Москва, Каширское шоссе, д.28к2 метро Каширская

Обзор Фото На карте Инфраструктура Рассчитать в кредит
Объявление №3893476
Опубликовано: 2025-10-06 00:30:53
Обновлено: 2025-11-01 02:39:20

  • 13 300 000 руб.
  • 1/5
  • 2
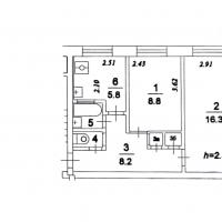
  • 43.3 м2
  • 26 м2
  • 5.8 м2
  • 26 м2
  • 307 159 руб.
  • 2 минут пешком
  • во двор
Предлагаем вашему вниманию 2-х комнатную квартиру на Каширском шоссе в доме 28 корпус 2. Квартира расположена на 1-м этаже 5-ти этажного кирпичного дома 1965 года постройки, строительной серии I-511. Квартира имеет 43,3 м. кв. общей площади, изолированные комнаты 16,3/8,8 м. кв., и кухню площадью 5,8 м. кв. В пешей доступности находится станция метро «Каширская», до которой можно добраться пешком за 3-4 минуты. В квартире выполнен косметический ремонт. В районе расположения дома находится вся необходимая для комфортного проживания инфраструктура: магазины, торговый цент, предприятия бытовых услуг, медицинские и спортивные центры, детские дошкольные учреждения, школа. По соседству, на берегу Москвы реки, расположился парк музей-заповедник Коломенское. В квартире никто не зарегистрирован и продается она свободной, без поиска альтернативы. [#7555932#]

Позвоните продавцу

Профиль - Крылов Петр

Телефон скрыт! Продлите объявление. Крылов Петр

Найдите проще

Еще можно:

Посмотреть серию дома
Посчитать ипотеку
Скачать шаблоны договоров купли-продажи
BazaTut.RU — база данных о недвижимости. Использование сайта, в том числе размещение объявлений, означает согласие с Пользовательским соглашением и Политикой конфиденциальности. Оплачивая услуги на сайте, вы принимаете оферту. Информация о cookies.